Le Lignum
Schiltigheim
Au cœur de l’Espace Européen de l’entreprise, le Lignum dispose de 7 300 m² de bureaux, dans un cadre baigné de lumière associant l’élégance du bois et les bienfaits de la végétation.
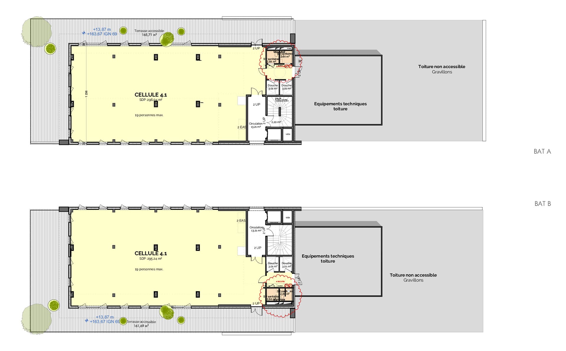
Les deux immeubles en R+3 avec attique totaliseront plus de 3 750 m² chacun, divisibles en cellules de 185 m² et 750 m² pour la totalité d’un plateau. En attique, un bureau exclusif de 300 m² donnant accès à une terrasse privative de plus de 160 m².
Ce projet innove par sa conception bioclimatique, avec l’utilisation d’un principe de façades en bois et noyau/dalle en structure béton armé, ou encore l’articulation autour d’un cœur d’îlot végétalisé. Le Lignum répond à la RE 2020 (réglementation environnementale des bâtiments neufs) dans sa conception et est certifié BREEAM Very Good concernant la performance environnementale du bâtiment.
Architecte : OSLO Architectes
Plaquette d’information du projet
Le programme en détail
Le Lignum
Bâtiment A
-
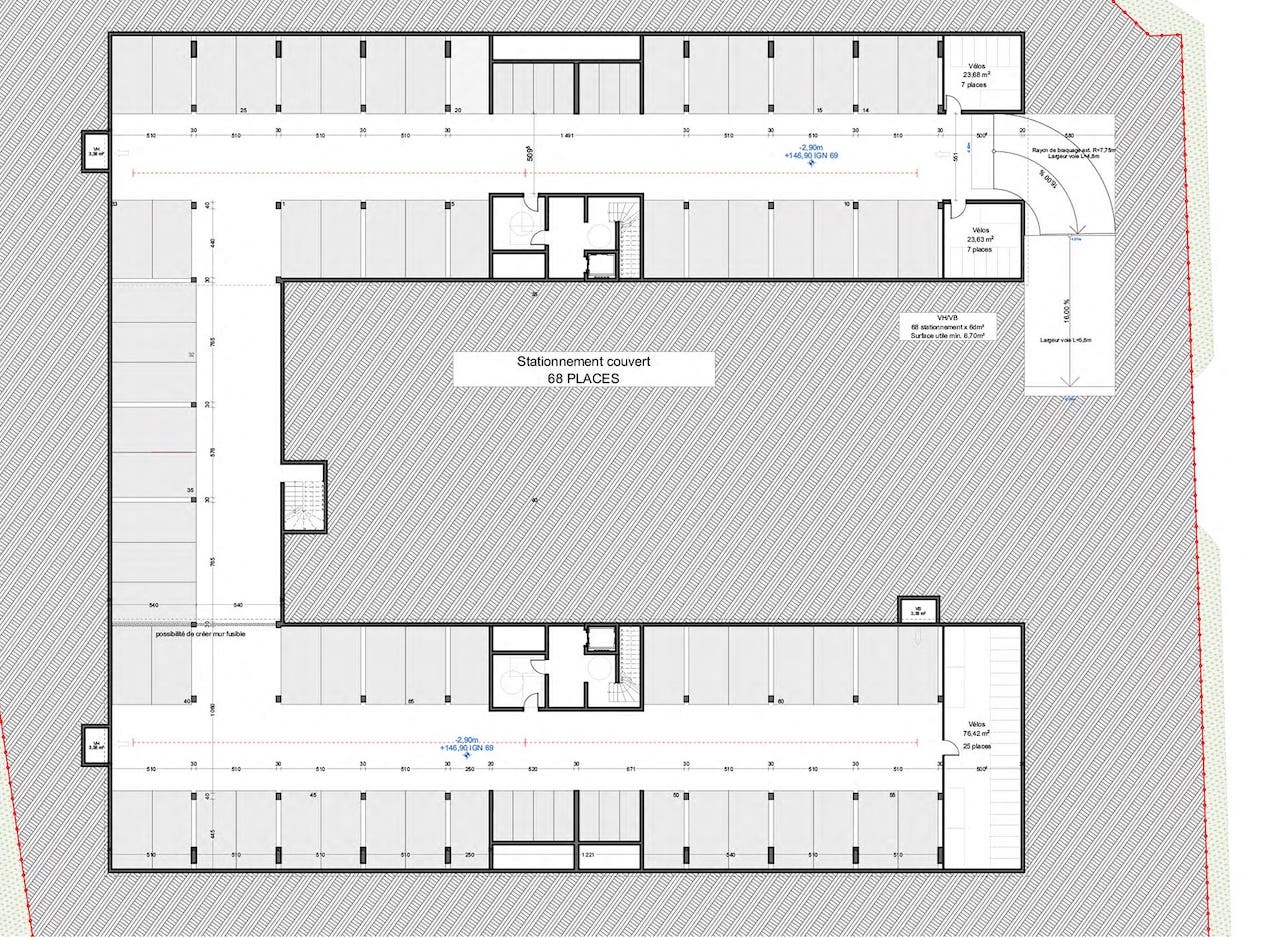
Parking : 138 places au global sous sol et 71 extérieures
-
Surface des cellules : A partir de 185 m² divisibles
- Ascenseur : Oui
- Nombre d'étages : R+3 et rooftop en attique
- Surface totale : 3700 m²
- Terrasse : Attique
- Certifications :
RE2020, BREEAM Very Good
Les lots disponibles






Bâtiment B
-
Parking : 138 places au global sous sol et 71 extérieures
-
Surface des cellules : A partir de 185 m² divisibles
- Ascenseur : Oui
- Surface totale : 3700 m²
- Terrasse : Attique
Les lots disponibles
Tissu économique local
Schiltigheim, France
TRANSPORTS
Bus : lignes 70 et G BHNS (vus à haut niveau de service reliant la gare TGV en 14 min), arrêt Vienne
Accès routier : à 5 minutes de l’autoroute A4
Pistes cyclables et chemin piétons arborés
COMMERCES
4 restaurant à proximité dans la zone
Proche des restaurants de Schilitgheim
Contactez-nous
Programme
Le Lignum
Schiltigheim, France

