Maison médicale - Molsheim
Molsheim
Située sur l’ancien site de Jardina, Allée Pierre Klingenfus, dans un bâtiment de 1 800 m² alliant une architecture à la fois classique et moderne, cette future maison médicale vous permettra de recevoir vos patients dans des locaux neufs, spécialement dédiés aux professionnels de santé.
Venez installer votre activité médicale en proximité du centre-ville de Molsheim et des commodités directes : gare, parking, zones d’activités et de service.
L’essentiel du programme
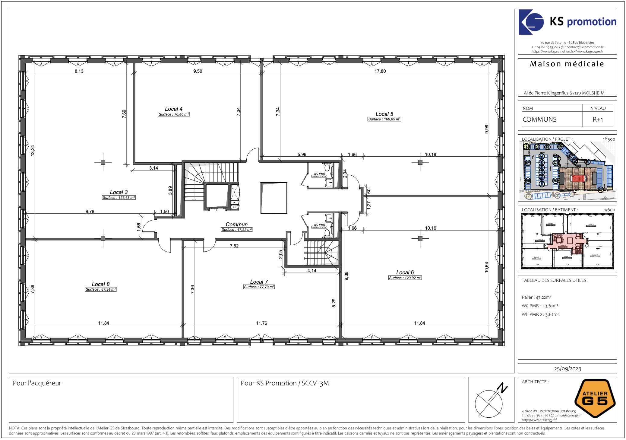
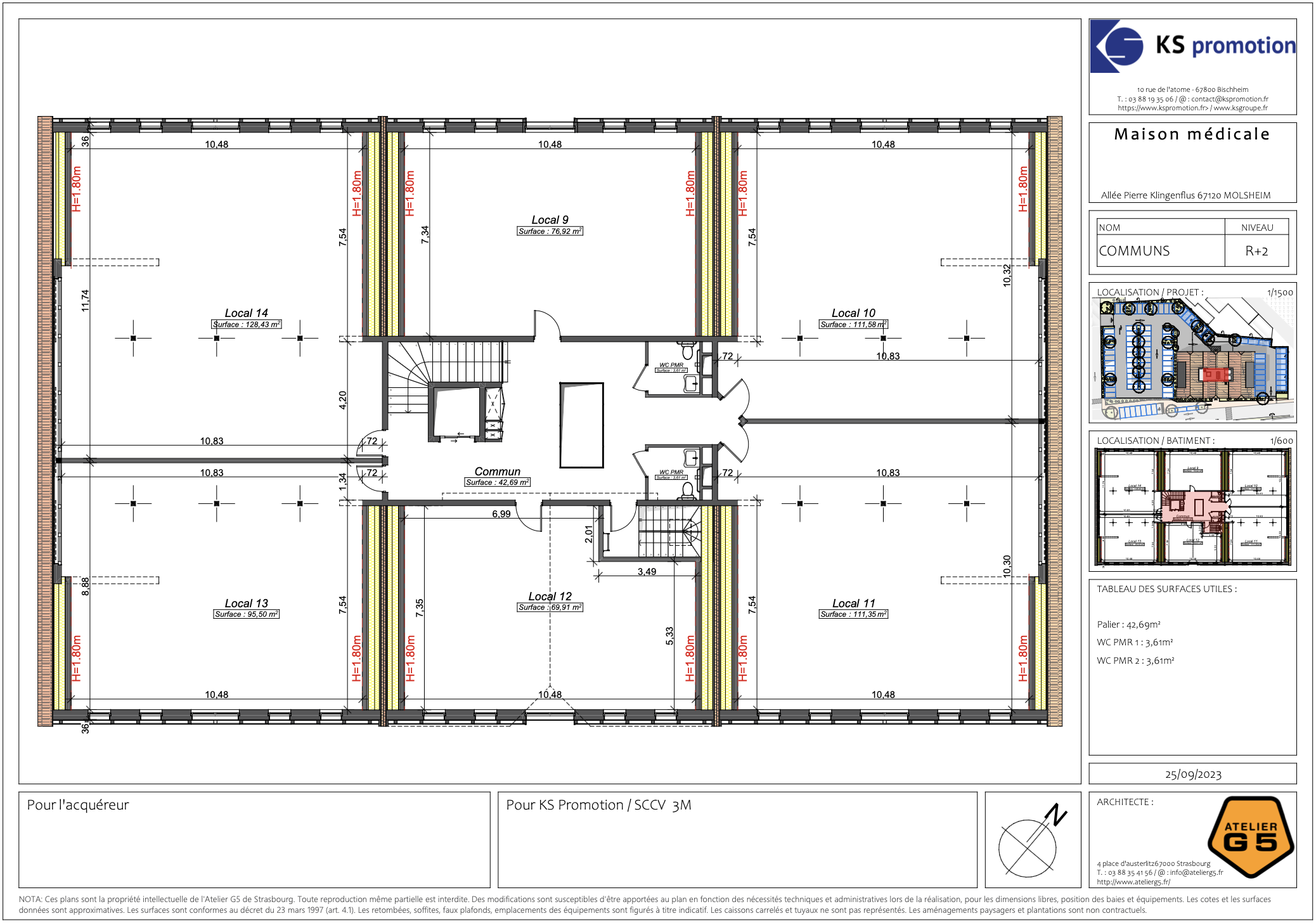
Des espaces disponibles à partir de 70 m² répartis sur 3 niveaux :
• 2 espaces disponibles en rez-de-chaussée
• 6 espaces disponibles au 1er étage
• 6 espaces disponibles au 2ème étage
• Un ascenseur desservant tous les niveaux,
• Des sanitaires en parties communes sur chaque niveau
• Un puits de lumière en toiture illuminant jusqu’au rez-de-chaussée
• Des parkings pour les praticiens et pour les patients
• Aménagements sur mesure possibles selon vos besoins
Architecte : G5
Plaquette d’information du projet
Le programme en détail
Maison médicale - Molsheim
REZ-DE-CHAUSSÉE
-
Surface du terrain : 3524 m²
-
Parking : parking pour les praticiens et pour leur patientèle
-
Surface des cellules : à partir de 69 m². Fusion possible si cellules contiguës, lots vendus équipés non cloisonnés
- Ascenseur : desservant tous les niveaux
- Nombre d'étages : R+2
-
Sanitaires : Des sanitaires en parties communes sur chaque niveau
- Aménagement : Accessibilité PMR. ERP catégorie 5. Aménagement sur mesure possible selon vos besoins (sur devis)
- Traitement de qualité :
Traitement architectural de qualité


1er étage
Les lots disponibles


Tissu économique local
Molsheim, France
TRANSPORTS
Gare de Molsheim
Autoroute
COMMERCES
Proximité directe avec le centre ville
Contactez-nous
Programme
Maison médicale – Molsheim
Molsheim, France






